Cylinder sleeve removal / replacement
- Kawboy
-
Topic Author
- Offline
- Sustaining Member
-
- Posts: 3216
- Thanks: 1180
Re: Cylinder sleeve removal / replacement
2 years 3 months agoTo answer your question, I inserted a piston in one of the liners and positioned it 71mm down the bore (the edge of the piston to the top of the cylinder) and snapped a picture. The protrusion is marginalAnd of course another question does the piston travel using the whole of the Bore/Liner top to bottom or is there a part not used at the bottom??
The following user(s) said Thank You: Youngblood
Please Log in or Create an account to join the conversation.
- Kawboy
-
Topic Author
- Offline
- Sustaining Member
-
- Posts: 3216
- Thanks: 1180
Re: Cylinder sleeve removal / replacement
2 years 3 months ago - 2 years 3 months ago
Got this reply back from L.A. Sleeve. $1008 USD ($1340 + duty + shipping = $1614.00CDN for stock sleeves) I'll suggest that a set of custom sleeves will be more money and for shits and giggles, I'll send in my drawing for a quote. Don was right. It's big money. Outside of my snack bracket. As much as I would love to do this, it's not worth it to me. On to plan B. finish cleaning up the cylinder block and reinstall the sleeves. Get the cylinder block decked to guarantee the deck is flat and plateau hone. Find a set of piston rings and move on.
Any suggestions for ring suppliers. Just looking for stock replacements 62mm.
dave@lasleeve.com
Jan 2, 2024, 8:57 PM (8 hours ago
Hello John, We still make the KZ1300 sleeves, although we don’t stock them these days. A set of our typical replacement sleeves is $1,008. Lead time is about 5 weeks. You need a basic replacement of the OEM sleeves, or are you wishing to create a custom wet type liner for the KZ1300 engine? If you want to have custom sleeves made, email the print to me and I’ll get you a quote.
Regards,
Dave Lasco,L.A.SLEEVE CO., Inc.
562-945-7578 ext.232
This email address is being protected from spambots. You need JavaScript enabled to view it.
www.lasleeve.com
Any suggestions for ring suppliers. Just looking for stock replacements 62mm.
dave@lasleeve.com
Jan 2, 2024, 8:57 PM (8 hours ago
Hello John, We still make the KZ1300 sleeves, although we don’t stock them these days. A set of our typical replacement sleeves is $1,008. Lead time is about 5 weeks. You need a basic replacement of the OEM sleeves, or are you wishing to create a custom wet type liner for the KZ1300 engine? If you want to have custom sleeves made, email the print to me and I’ll get you a quote.
Regards,
Dave Lasco,L.A.SLEEVE CO., Inc.
562-945-7578 ext.232
www.lasleeve.com
Last edit: 2 years 3 months ago by Kawboy.
Please Log in or Create an account to join the conversation.
- Youngblood
-
- Offline
- Junior Member
-
- Posts: 21
- Thanks: 4
Re: Cylinder sleeve removal / replacement
2 years 3 months ago
I have found a guy in the UK that sells blanks any size just waiting for a price, a company that sells the hollow bar, also a company that make one off liners mainly for diesel engines? would it be OK for me to send your drawing to them? I expect Ill have to redo it in metric not inches but it will be close enough.
Please Log in or Create an account to join the conversation.
- Kawboy
-
Topic Author
- Offline
- Sustaining Member
-
- Posts: 3216
- Thanks: 1180
Re: Cylinder sleeve removal / replacement
2 years 3 months agoSure. That would be great if for nothing else but to advance the topic and open up the options, especially to those over your wayI have found a guy in the UK that sells blanks any size just waiting for a price, a company that sells the hollow bar, also a company that make one off liners mainly for diesel engines? would it be OK for me to send your drawing to them? I expect Ill have to redo it in metric not inches but it will be close enough.
I'm still not done exploring the options. I want to talk to a automotive machine shop I've dealt with over the past 40 years. He also rebuilds diesels so maybe there's a different option Like a sleeve that's close and can be machined for this application. Who knows until you ask. Just like who'd a thought that the KZ650 pistons and the KZ750 pistons are so close making them options.
Please Log in or Create an account to join the conversation.
- Kawboy
-
Topic Author
- Offline
- Sustaining Member
-
- Posts: 3216
- Thanks: 1180
Re: Cylinder sleeve removal / replacement
2 years 3 months ago - 2 years 3 months ago
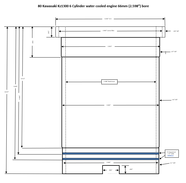
I needed to add 2 o ring grooves to the bottom of the sleeve. This is the final drawing as I see it.
Last edit: 2 years 3 months ago by Kawboy.
Please Log in or Create an account to join the conversation.
- dcarver220b
-
- Offline
- Sustaining Member
-
- Posts: 1198
- Thanks: 276
Re: Cylinder sleeve removal / replacement
2 years 3 months ago
I appreciate all you peeps for doing this heavy lifting.
Please Log in or Create an account to join the conversation.
Moderators: scotch
Time to create page: 0.210 seconds
